コンテンツへスキップ
ナビゲーションに移動
TEL:075-706-7766
お問い合わせはお気軽に
TOP
居抜物件ってどんな物件?
居抜物件ってどんな物件?
居抜物件が求められる理由
空き店舗無料診断
空き店舗無料診断
退去立会でお困りなら
賃貸経営お役立ち
なぜ空室になるの?
一戸から管理
募集方法・流れ
選ばれる理由
閉店をお考えの方へ
無料相談でよくある質問集
事業用物件ってどんな物件?
テナント募集のコツ
管理を任せるメリット
はじめての不動産投資
不動産の税金編
無料相談でよくある借主質問集
飲食店経営に関する質問
開業準備に関する質問
お問合せ
投稿
HOME
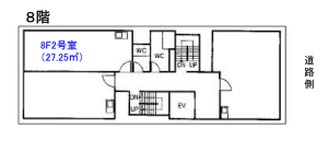
市役所前4分、上質コンパクトオフィス ― 信頼の御池ビル8階募集
image
2025年12月2日
/ 最終更新日時 :
2025年12月2日
sato1
image
MENU
TOP
居抜物件ってどんな物件?
居抜物件ってどんな物件?
居抜物件が求められる理由
空き店舗無料診断
空き店舗無料診断
退去立会でお困りなら
賃貸経営お役立ち
なぜ空室になるの?
一戸から管理
募集方法・流れ
選ばれる理由
閉店をお考えの方へ
無料相談でよくある質問集
事業用物件ってどんな物件?
テナント募集のコツ
管理を任せるメリット
はじめての不動産投資
不動産の税金編
無料相談でよくある借主質問集
飲食店経営に関する質問
開業準備に関する質問
お問合せ
PAGE TOP